Your privacy is important to us. This website uses cookies to enhance user experience and to analyze performance and traffic on our website. By using this website, you acknowledge the real-time collection, storage, use, and disclosure of information on your device or provided by you (such as mouse movements and clicks). We may disclose such information about your use of our website with our social media, advertising and analytics partners. Visit our Privacy Policy and California Privacy Disclosure for more information on such sharing.

Log In

Our Brands

Helpful Tools

Search

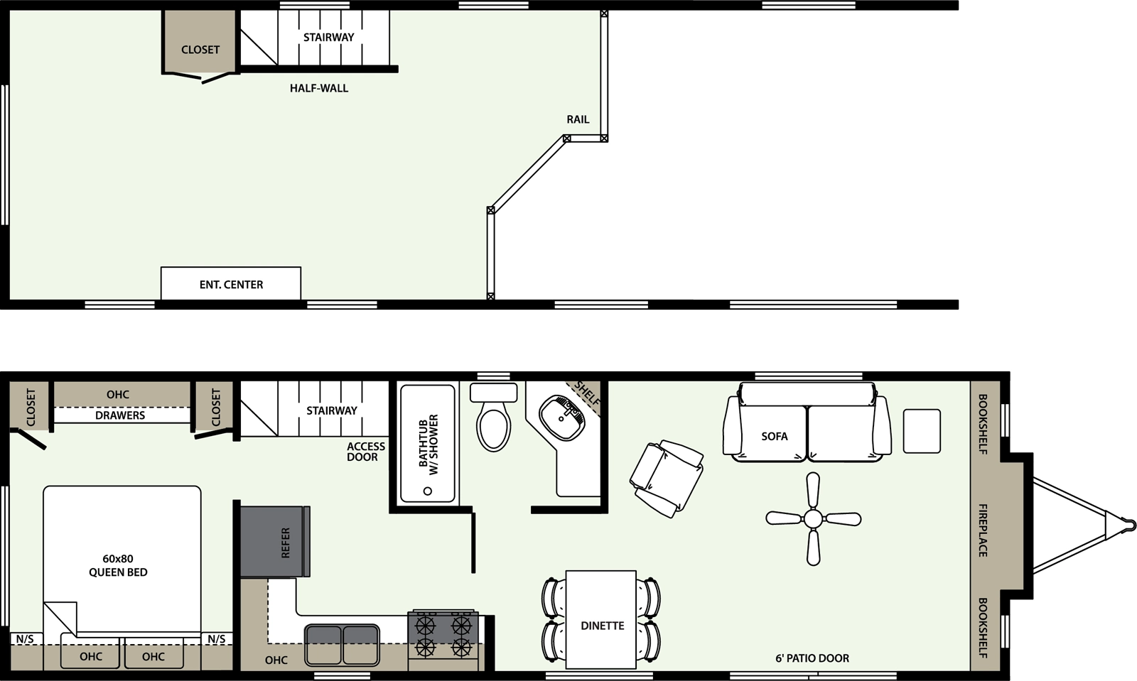
Explore 2026 39CBDL Quailridge US Models - all units available as non-loft

The 39 CBDL features 396 sq ft with a loft above the living area to create extra sleeping or storage space. The central kitchen layout makes the interior feel connected and easy to navigate. Rugged materials and an efficient footprint offer value for campers who want a dependable park model.

Box Size
36 X 11
Square Feet
396
Bedrooms
1
Bathrooms
1