Your privacy is important to us. This website uses cookies to enhance user experience and to analyze performance and traffic on our website. By using this website, you acknowledge the real-time collection, storage, use, and disclosure of information on your device or provided by you (such as mouse movements and clicks). We may disclose such information about your use of our website with our social media, advertising and analytics partners. Visit our Privacy Policy and California Privacy Disclosure for more information on such sharing.
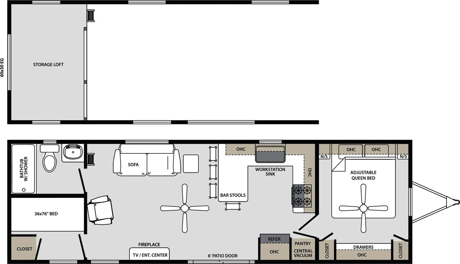
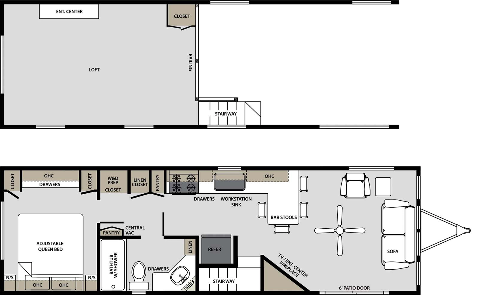
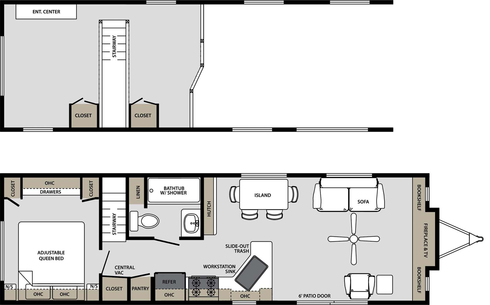
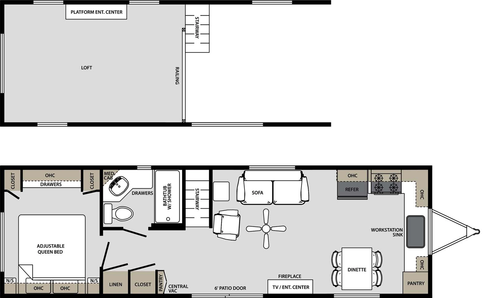
The Quailridge Premier US Park Models from Forest River are crafted for outdoor enthusiasts who want the comfort of home paired with the beauty of nature. Designed for extended stays near lakes, trails, and scenic getaways, each model features premium construction, weather-smart materials, and heavy-duty roofing to withstand a range of conditions. Expansive windows invite natural light and stunning views, while thoughtfully designed floorplans offer open-concept living and cozy retreats. Whether you’re unwinding after a day of adventure or hosting family by the campfire, Quailridge Premier US provides a dependable, luxurious basecamp.
Please sign up below if you would like to receive notifications when we make updates to this brand. Or, if you only want updates on a particular floorplan, you can select to be updated on each one individually.