Your privacy is important to us. This website uses cookies to enhance user experience and to analyze performance and traffic on our website. By using this website, you acknowledge the real-time collection, storage, use, and disclosure of information on your device or provided by you (such as mouse movements and clicks). We may disclose such information about your use of our website with our social media, advertising and analytics partners. Visit our Privacy Policy and California Privacy Disclosure for more information on such sharing.

Log In

Our Brands

Helpful Tools

Search

Explore 2026 355FLL-P Quailridge Premier Park Models

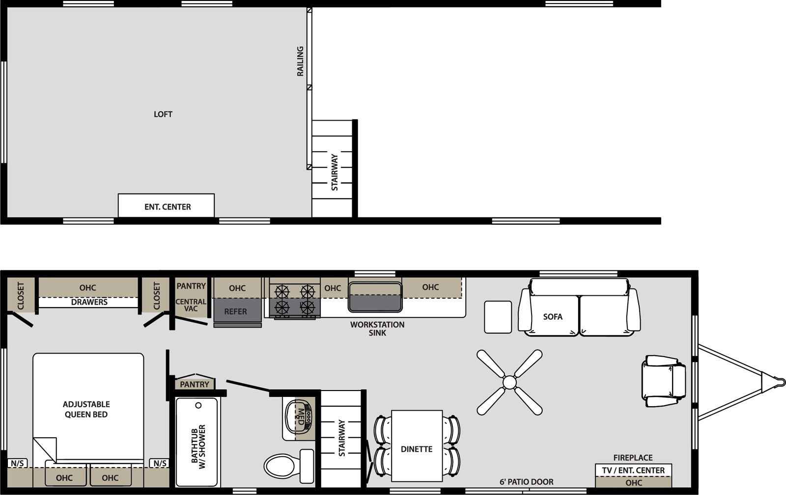
This 355FL-L-P spans 377 sq ft with a loft and single bath. Carpeted loft stairs free up main floor space for living and dining. Strong chassis, Thermopane windows, and solid insulation provide a durable, practical, and energy-smart design for outdoor-focused stays.

Box Size
34 X 11
Square Feet
377
Bedrooms
1
Bathrooms
1

355FLL-P Floorplan Quailridge Premier Park Models Features & Options

    • 10" welded i-beam chassis
    • Corrosion resistent enclosed underbelly
    • 2"x6" transverse floor joist 16" on center
    • 5/8" tongue and groove plywood decking
    • R22 floor and roof insulation
    • OSB wall sheathing w/ weather wrap
    • Thermopane windows
    • Residential vinyl siding
    • Exterior lineals
    • 16" on center rafters
    • Fixed overhangs
    • Perimeter ice/storm shield
    • 30-year warranty asphalt shingles
    • Tall loft w/extended dormers
    • Premium vinyl siding
    • Front trapezoid window
    • Doorside add on eave
    • Barn style metal roof
    • Cushion backed vinyl flooring
    • Carpeted loft and steps (U.S. models only)
    • Batten strips ipo seam tape
    • Stainless steel kitchen sink
    • 1-piece fiberglass tub/shower
    • Residential porcelain toilet
    • 60x80 serta queen bed w/bedspread
    • Shaker style 2 panel interior doors
    • Residential base trim
    • Additional recliner
    • Pit group ipo sofa and recliner
    • Ceramic backsplash in kitchen
    • Additional pantry in hall (where available)
    • Island w/ contoured barstools ipo table/chairs
    • Pocket door ipo swing door (bedroom or bathroom)
    • Shower ipo tub/shower
    • Shower door ipo curtain
    • Quailridge Premier Premium Furniture Package
    • Residential black kitchen appliances (17.5 cu ft. refrigerator, 30" gas range, microwave)
    • Electric fireplace
    • 40,000 BTU ducted furnace w/ perimeter registers
    • 5,000 BTU loft A/C (loft models only)
    • 20 gallon electric water heater
    • Bath fan
    • Fire extinguisher
    • Smoke detectorrs
    • Carbon monoxide detector
    • Living room ceiling fan
    • Stainless steel appliances
    • 18" ss dishwasher (where available)
    • Stackable washer/dryer prep (where available)
    • Stackable washer/dryer (where available)
    • 56,000 BTU upright furnace (where available)
    • 13,500 BTU park pack A/C ship loose
    • A/C prep for park pack A/C
    • Central A/C prep (56k furnace required)
    • 16 gallon gas/electric water heater (where available)
    • Smart TV livingroom
    • Workstation kitchen sink
    • Soft close drawer guides
    • Central vac system w/power dust pan
    • Rainfall shower system (shower opt. only)
    • Black cabinet hardware and fixtures
    • Premium adjustable bed base w/cooling memory foam mattress