Your privacy is important to us. This website uses cookies to enhance user experience and to analyze performance and traffic on our website. By using this website, you acknowledge the real-time collection, storage, use, and disclosure of information on your device or provided by you (such as mouse movements and clicks). We may disclose such information about your use of our website with our social media, advertising and analytics partners. Visit our Privacy Policy and California Privacy Disclosure for more information on such sharing.

Log In

Our Brands

Helpful Tools

Search

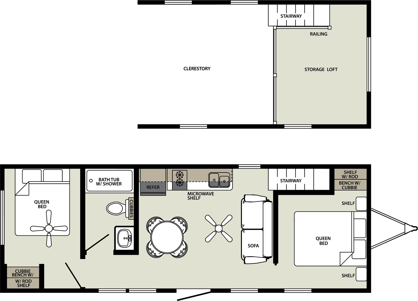
Explore 2026 APC-PC-35SL Premium Cabin Series - Loft

Forest River’s APC PC 35SL Premium Cabin gives outdoor enthusiasts a spacious loft layout designed for extended stays in nature. Two queen sleeping areas, a full bath and a functional kitchen make it easy to relax after hiking, fishing or exploring. Large windows, an open living area and smart storage support comfortable campground living while keeping you connected to the adventure outside.

Box Size
35 X 11
Square Feet
385
Bedrooms
2
Bathrooms
1